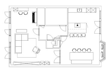
Bekijk hier een impressie van mijn ontwerp voor de woonverdieping van een jaren 30-appartement in Amsterdam. De hele indeling werd omgegooid zodat er één grote leefverdieping ontstond. Hiervoor ontwierp ik o.a. een maatwerk keuken met eiland en een XXL wandkast met wijnklimaatkasten, televisie en opbergruimte.









"Amber heeft geadviseerd bij de indeling en inrichting van onze woonverdieping, die geheel gerenoveerd werd. We zijn zeer tevreden met het resultaat. De samenwerking was prettig en servicegericht. We kunnen haar van harte aanbevelen."
Ik gebruik cookies om websiteverkeer te analyseren en de ervaring op mijn website te optimaliseren. Als je het gebruik van cookies accepteert, worden je gegevens gecombineerd met de gegevens van alle andere gebruikers.

Samen met Yvonne Brant ga ik verder onder de naam Studio Les Deux. Wij richten ons als full-service interieurarchitectuur studio op renovaties van particuliere woningen. We vertalen jouw interieur dromen naar een uniek, verrassend en persoonlijk ontwerp.
Kijk voor meer informatie op onze website (coming soon). Je kunt ons ook bellen op 06-11312408 of een mail sturen naar info@studiolesdeux.nl. We kijken ernaar uit!